Продам: гостиницу в Краснодаре
Адрес: ул. Бабушкина
2 октября 2025 г. в 02:54 объявление № Н-27957756
Продажа без комиссии от покупателей!
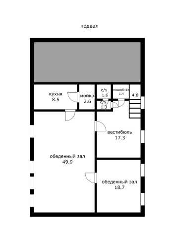
Продаётся гостиница в Центральном округе г. Краснодара, в трёх уровнях, площадью 424 кв.м, в отличном состоянии. Номерной фонд - десять номеров разной площади от 10 до 55 кв.м. Есть сауна, комнаты отдыха, обеденные залы, подсобные помещения, две террасы. Гостиница укомплектована всей необходимой мебелью и бытовой техникой, входящими в стоимость. Все коммуникации центральные, сетевой газ. Интернет, видеонаблюдение, охрана, система пожарной безопасности.
Угловой земельный участок площадью 6,2 сот., с размерами 15 х 41 м. Парковка перед домом и во дворе. Кирпичный забор, во дворе тротуарная плитка.
Отличное местоположение, асфальтированный подъезд, прекрасно развитая инфраструктура, в 100 м от центральной магистральной улицы города - ул. Северной.
Возможны разные формы расчёта и обмен.
Контакты
Постоянный адрес этого объявления:
https://krasnodar.barahla.net/nedvizhimost/kommercheskaya-nedvizhimost/27957756_prodam-gostinicu.html(скопировать)

Не перечисляйте предоплату, если нет значительных оснований доверять продавцу.
При получении товара, в качестве которого вы сомневаетесь, возьмите расписку с продавца и перепишите паспортные данные.
«Барахла.нет» никогда не участвует в сделках и, соответственно, ничего не гарантирует покупателям и продавцам.
Ранее просмотренные
Похожие объявления: