Выбран город:
Краснодар

Выбрать другой город:

Продам: дом в Краснодаре

Стоимость: 9900000 Р. 130263.16 $ € 110000.00

Адрес: ул. Садовая

Сегодня в 18:06 объявление № Н-28133448

Написать Связаться
avatar Александр

id: 808323 зарегистрирован 20.06.2011

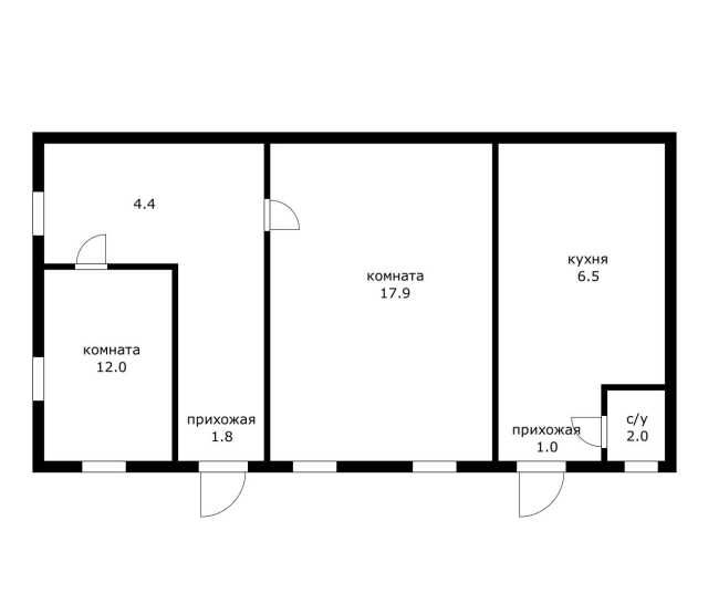
Общая площадь: 97 кв.м.

Продажа без комиссии и процентов от покупателей!
Центральный округ Краснодара, в районе Садового моста. Продаётся жилой дом (на два входа), площадью 97/48/25 кв.м, в отличном состоянии. Подойдёт для проживания двух семей. В каждой половине дома по две жилых комнаты, кухня и совмещённый сан/узел. В доме выполнен ремонт, установлены металлопластиковые окна. Газовое отопление, есть сплит-системы. При продаже остаётся частично мебель и бытовая техника. Все центральные коммуникации, в том числе и канализация.
Земельный участок ИЖС, площадью 3 сотки. Во дворе капитальный навес, хозпостройки, уличный туалет и кирпичный гараж. Двор выложен плиткой, имеется свободная земля для насаждений. Участок огорожен по периметру металлическим забором. Дополнительно перед домом на зоне отчуждения - два парковочных места, выложенных плиткой.
Дом расположен на тихой улице. В шаговой доступности трамвайная остановка, магазины, пункты выдачи интернет заказов, дет/сад, школа, колледж, университет, парк им. 65-годовщины Великой Победы. Удобная транспортная развязка в любом направлении.

Написать Связаться

Не перечисляйте предоплату, если нет значительных оснований доверять продавцу.
При получении товара, в качестве которого вы сомневаетесь, возьмите расписку с продавца и перепишите паспортные данные.
«Барахла.нет» никогда не участвует в сделках и, соответственно, ничего не гарантирует покупателям и продавцам.